Theater: Flexible Seating Configuration Examples

Click on image below to open full-size PDF of floorplan/seat map.
Note: There is no Row I, and it is not possible to extend 11 rows in any configuration.

Fully Extended

Rows A - M, 12 Rows, 235 Seats

Optional Row AA adds 10 seats on floor in front of Row A; when fully extended, the seating unit naturally has a crossover for performers + crew behind audience.

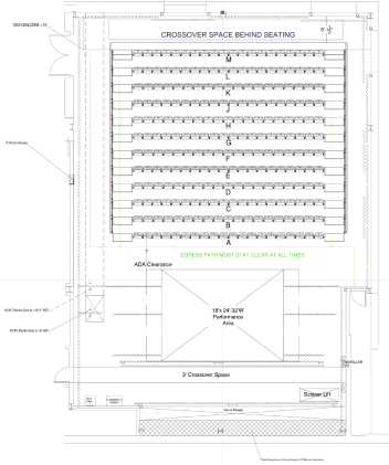
9 Rows with FOH Crossover

Rows A - J, 9 Rows, 176 Seats

The unused rows of the seating unit can be pulled forward to create a crossover behind the audience for performer and crew use. In this example, Rows K - M are “stacked” behind Row J.

9 Rows

Rows A - J, 9 Rows, 176 Seats

Unused rows (in this example K - M) can be “stacked” against the wall, leaving no room for crossover, but creating additional space for staging. This configuration allows for up to four rolls of marley to be used for dance performances (approx. performance space depth of 24’).

6 Rows Mid-Theater Flexible

Rows A - F, 6 Rows, 117 Seats

Row A position can be maintained, while the rear of the seating unit contracts toward the stage or expands back from the stage, with unused rows stacked as a “wall” behind the seating being used. The minimum number of rows for this configuration is 6, and the maximum is the fully extended seating unit show above. This variation allows productions to “right-size” the seating capacity based on projected ticket sales while maintaining a fixed stage position.

Most Common Seating Configurations

Click on Configuration Name to open PDF of floorplan/seat map.
Note: There is no Row I, and it is not possible to extend 11 rows in any configuration.

No FOH Crossover

With FOH Crossover

Mid-Theater Flexible

6 Rows (A-F), Flex, 117 Seats

Options Available, but no drawings:

7 Rows (A-G), Flex, 137 Seats

8 Rows (A-H), Flex, 156 Seats

9 Rows (A-J), Flex, 176 Seats